April 2026: Door maneuvering clearance
Posted on - Wednesday, April 1st, 2026During my reviews and inspections of ADA projects, I still get questions about doors and maneuvering clearance requirements. I thought it would be helpful to review the requirements for door clearances in this newsletter. As an overview, the US Access Board created a video explaining it as well:
Basically, the ADA Standards requires that any door that is intended for user passage must comply. This include work area doors, certain doors that are not just through accessible spaces, egress doors etc.:
206.5 Doors, Doorways, and Gates. Doors, doorways, and gates providing user passage shall be provided in accordance with 206.5.

The hotel room shown above is a non-ADA room, but the doors that provide user passage through the room will have to comply. This newsletter is not discussing hotels or all the different requirements. This example is just for information about doors only.

Doors that do not provide user passage, like the one shown above, will not be required to comply.
Door Maneuvering Clearances
The door maneuvering clearance is the amount of room required for a person in a wheelchair and other mobility devices to approach the door, open the door and go through the door.

A maneuvering clearance described in Section 404 will provide different requirements according to the following criteria:
- Approach to the door (forward approach, hinge side approach and latch side approach)
- Whether the person is located on the push side of the door or the pull side of the door
- Whether the door has BOTH a closer and a latch.
Depending on the criteria listed above, the Standards will guide the user to provide a certain amount of clearance at the door.

This figure gives guidance for a forward approach on the pull side. The description below the letter will let us know if this applied to all such doors, or whether they are only for certain doors. In this case, this clearance applies to ALL doors that are opened from the pull side and on a forward approach.

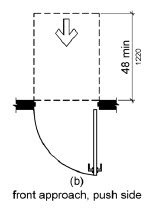
This figure gives guidance for a forward approach on the push side. This clearance applies to doors that are opened from the push side and on a forward approach. There is a second figure that provides more guidance about the push side approach

This figure on the other hand, lets us know that this maneuvering clearance applies to a forward approach push side when the doors has BOTH a closer and a latch. This type of door would require an additional 12″ on the latch side
Recessed Doors
There is another approach that the ADA allows and that is in a “recess”. A recess is either a thicker wall, or any object that is 8″ or less within the maneuvering clearance of the door.
404.2.4.3 Recessed Doors and Gates. Maneuvering clearances for forward approach shall be provided when any obstruction within 18 inches (455 mm) of the latch side of a doorway projects more than 8 inches (205 mm) beyond the face of the door, measured perpendicular to the face of the door or gate.
Advisory 404.2.4.3 Recessed Doors and Gates. A door can be recessed due to wall thickness or because of the placement of casework and other fixed elements adjacent to the doorway. This provision must be applied wherever doors are recessed.

The figure above shows how a recessed door requires for the approach.

The photo above shows a trash receptacle that is less than 8″ deep and within the maneuvering clearance on the pull side of the door. This is allowed based on the recessed door provisions
Abadi 
