March 2026: ADA requirements for Children
Posted on - Tuesday, March 3rd, 2026My client was designing a school for children between ages 3-12. He asked me to assist with a location of a toilet paper dispenser that the school district had selected. The school district’s vendor suggested an 11″ tall dispenser. He was having a hard time making it fit the children’s parameters.
This newsletter will show you the situation so we can guide our clients to select dispensers that will work for children with disabilities.
NOT ALL TOILET PAPER DISPENSERS ARE CREATED EQUAL
There are facilities that have contracts with vendors to provide efficient toilet accessories and paper towel dispensers. These are normally designed so that they do not have to be refilled or replaced very often. Therefore they are normally much larger.
When designing for children, we need to keep in mind that not all toilet accessories, such as toilet paper dispensers, will be able to be used and also meet the requirements for accessibility listed in the ADA and TAS

This toilet paper dispenser is 11″ high. It will not be able to be used and also comply with the requirements for children with disabilities.
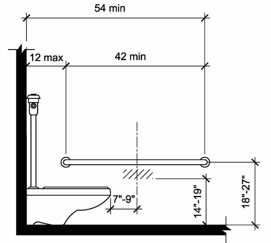
Two things to keep in mind when selecting the toilet paper dispenser for children with disabilities: The location of the toilet paper dispenser relative to the finished floor and the location of the toilet paper dispenser relative to the gripping surface of the grab bar.
The ADA section 604.9.6 Dispensers for children states requires that the toilet paper dispenser be located a certain distance above the finished floor:
The outlet of the dispenser shall be 14 inches (355 mm) minimum and 19 inches (485 mm) maximum above the finish floor. There shall be a clearance of 1 1/2 inches (38 mm) minimum below the grab bar. Dispensers shall not be of a type that controls delivery or that does not allow continuous paper flow.

The drawing above is a summary of the grab bar heights and the dispenser heights allowed for children. The range is allowable for any age group. There is a chart in the advisory that recommends mounting heights for different ages, but you are allowed to use the ranges listed instead of the chart.
The ADA requires that the gripping surface of the grab bar not be obstructed. Therefore, it sets up parameters of how far an element must be positioned relative to the top and bottom of the grab bar’s gripping surface:
609.3 Spacing. The space between the wall and the grab bar shall be 1 1/2 inches (38 mm). The space between the grab bar and projecting objects below and at the ends shall be 1 1/2 inches (38 mm) minimum. The space between the grab bar and projecting objects above shall be 12 inches (305 mm) minimum.

The position of the grab bar itself also has a range for children.
609.4 Position of Grab Bars. Grab bars shall be installed in a horizontal position, 33 inches (840 mm) minimum and 36 inches (915 mm) maximum above the finish floor measured to the top of the gripping surface, except that at water closets for children’s use complying with 604.9, grab bars shall be installed in a horizontal position 18 inches (455 mm) minimum and 27 inches (685 mm) maximum above the finish floor measured to the top of the gripping surface.
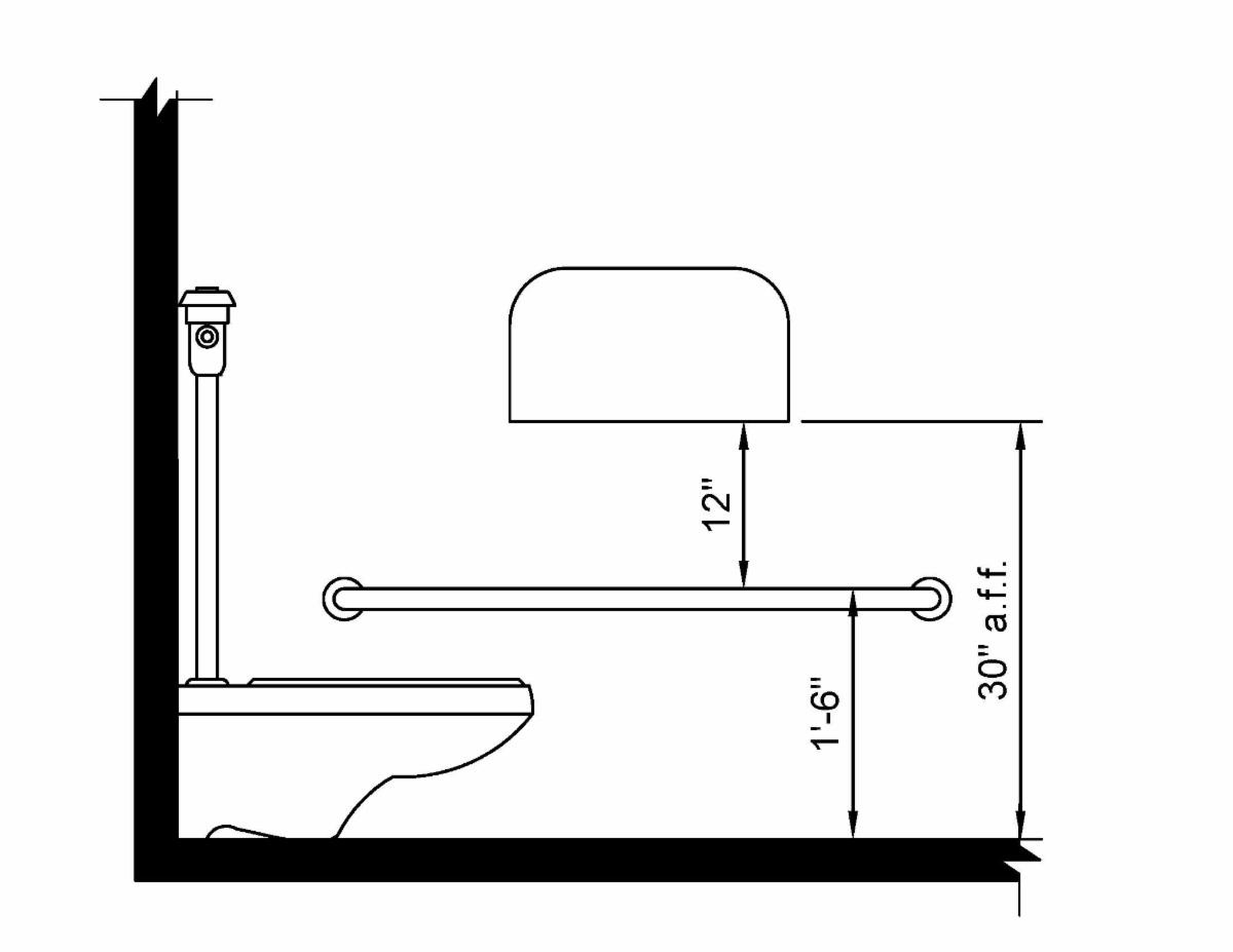
Keeping those two requirements in mind, we shall see what happens If they put the toilet paper dispenser below of the grab bar if the grab bar when the gripping surface at 27” a.f.f.

This is what happens If we use the 11″ tall toilet paper dispenser and locate it below the grab bar, even if we mount the gripping surface at 27″ a.f.f. (which is the maximum allowable), the bottom gripping surface must be 1 1/2″ above the dispenser and that brings the bottom of the dispenser lower than the minimum required dimension.
If the toilet paper dispenser is mounted above the grab bar, If the grab bar is at its lowest height above the finished floor (18″), then the bottom of the outlet would be higher than the required 19″ a.f.f. for the children to reach.

If we use the 11″ tall toilet paper dispenser and locate it above the grab bar, even if we mount the grab bar’s gripping surface at 18″ a.f.f. (which is the minimum allowable range), the dispenser must also be located 12″ above the grab bar’s gripping surface, which brings the bottom of the dispenser higher than the maximum required 19″ a.f.f.
Therefore a smaller toilet paper dispenser would have to be used for children with disabilities in order to provide equal access.
Abadi 
